Constitution

Ref : 7301118

Schaerbeek - 175m² - 4 chambres

350.000€

Située au calme en intérieur d’ilot d’un projet CASCO dans le quartier du Botanique, venez découvrir cette maison à vendre CASCO de +/-165 m² composée d’un beau séjour avec accès au jardin, 4 chambres, 2 salles de bains, agréable jardin/terrasse, et cave le tout sur 3 niveaux plus sous-sol. Ce projet CASCO situé à proximité de toutes commodités consiste en un beau projet de rénovation comprenant deux bâtiments avant composés de 6 appartements (4 sont déjà vendus) et deux maisons arrière chacune avec un jardin. Les parties communes ainsi que le gros oeuvre fermé des unités sont en cours de rénovation aux frais du vendeur (local à vélo pour toutes les unités, hall d’entrée, châssis double vitrage, descentes d’eau pluviale, videophone, terrasses et jardins, arrivées/départs des techniques « eau-gaz-électricité » dans toutes les unités,…). Les travaux de parachèvement et finitions à l’intérieur des unités sont aux frais des acquéreurs (chaudière, cuisine, sanitaires, revêtements de sol, …). Projet rare à venir découvrir en urgence!! Annonce non contractuelle, sous réserve de modification. Informations et visites idéalement par email: info@keyrealestate.be – www.keyrealestate.be – 0477/656782.

Informations cles

Disponibilité : à vendre
Etat : Petits travaux
Nombre de façades : 2
Nombre d'étages : 2
Surface : 175m²
Nombre de salles de bains : 2
Nombre de toilettes : 2
Cuisine : oui
Type de cuisne : non-équipée
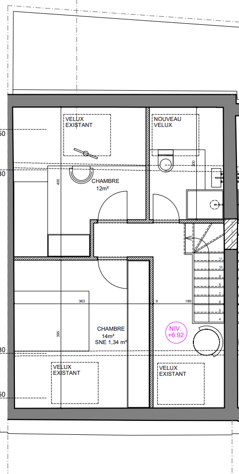
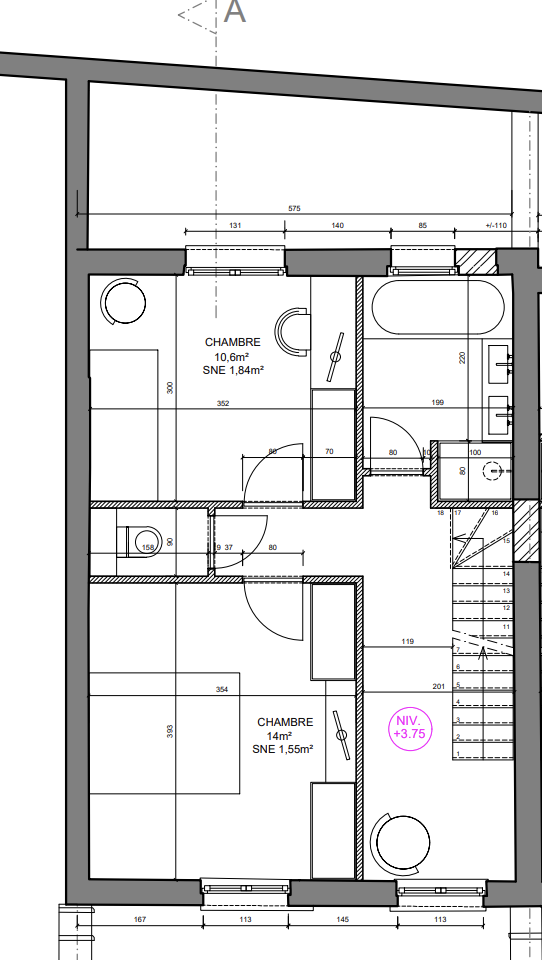
Nombre de chambres : 4
Surface de la chambre 1 : 14m²
Surface de la chambre 2 : 14m²
Surface de la chambre 3 : 12m²
Surface de la chambre 4 : 10m²
Chauffage : gaz
Terrasse : oui
Jardin : oui
Documents :- Pan 1er
- Plan 2eme
- Plan RDCH

Adresse

Rue : Rue de la Constitution
Code postal : 1030
Ville : Schaerbeek
 

Envie de visiter ce bien ? Besoin de plus d'informations ?